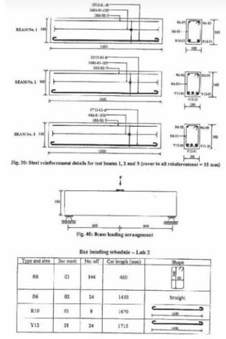
Shear arrangement Assignment
- Country :
Australia

Shear arrangement - Word file
- Calculate the reinforced beam reaction
- calculate the over reinforced beam reaction
- prove the shear limit are not enough in the beam
Are you struggling to keep up with the demands of your academic journey? Don't worry, we've got your back! Exam Question Bank is your trusted partner in achieving academic excellence for all kind of technical and non-technical subjects.
Our comprehensive range of academic services is designed to cater to students at every level. Whether you're a high school student, a college undergraduate, or pursuing advanced studies, we have the expertise and resources to support you.
To connect with expert and ask your query click here Exam Question Bank
Do according to the BS code